(05066) 70 44 0

English  

<<   Light+Building in Frankfurt 8.3.26 - 13.3.26 mehr/more >>

Home
  • Products
    • Products
    • Metering cabinets
    • Transformer cabinets
    • Metering transformer cabinets
    • Freestanding distributors
    • Outdoor distributors
    • Accessories
  • Quality
  • Exhibitions
  • Career
  • Contact

Home > Products > Freestanding distributors > Metering cabinet system St 2000/820/400 ZW

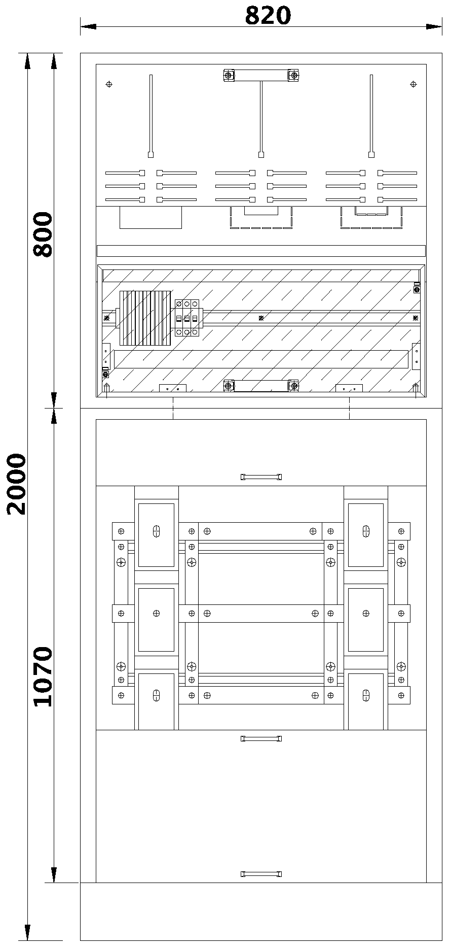
Metering cabinet system St 2000/820/400 ZW

Recycleble full plastic ● protective insulation ● sturdy stiff design

 

Transformer metering up to 630A

Metering cabinet St 2000/820/400 ZW

 

Dimensions: 2000 x 820 x 400 mm

 

Freestanding cabinet with base

 

Weight: approx. 250 kg

 

Meter:

• Mounting position for the network operator’s meter boards

 

Door with full-view safety glass

Lock: Toggle closure

 

Transformer:

• Cable entry at bottom: via cable entry plate

• 2 NH fuse load disconnector block Size 3/630

• Primary guide rails for the network operator’s transformers

• Wiring set for transformer meter

 

Lock: Swivelling lever handle, prepared for profile cylinder

 

Meter board E 800/800 D1-H5

 

Dimensions: 750 x 750 x 25 mm

 

• 3 meter positions

• Test terminal

• Voltage path fuse

• Completely wired ready to connect

• Transparent, sealable cover

 

Weight: approx. 8 kg

PDF Download
Product inquiry

Contact

Paul Deppe & Co. GmbH

Emmy-Noether-Str. 6 

31157 Sarstedt, Germany 

Telephone: (05066) 70 44 0 

Fax: (05066) 70 44 44 

E-Mail: info{at}deppe.eu

Sitemap

Home

 

Quality

 

Exhibitions

 

Contact

 

Legal

 

Privacy policy

Products

Metering cabinets

Transformer measurements

  • E 700/400 D1
  • E 700/550 D1
  • E 700/750 D1
  • E 950/550 D1
  • E 800/800 D1
  • E 950/800 D1
  • E 2000/800 D1

Direct measurements

  • D 1100/300-1Z
  • D 1250/300-2Z
  • D 1400/300-2Z

Transformer cabinets

  • E 800/550 D1-W
  • E 800/550 D1-W-TN
  • E 800/800 D1-W

Metering transformer cabinets

  • E 700/700 D1-ZW
  • E 1100/700 D1-ZW
  • E 1100/950 D1-ZW
  • E 700/950 D1-ZW
  • E 950/800 D1-ZW
  • E 1250/550 D1-ZW
  • E 1250/800 D1-ZW
  • E 1250/1050 D1-ZW

Freestanding distributors

  • St 2000/820/400 ZW

Outdoor distributors

  • A 1100/1115 ZW
  • A 1100/1445 ZW

Accessories

© 2025 Paul Deppe & Co. GmbH