(05066) 70 44 0

English  

<<   23.-25.09.2025 Efa:on Leipzig (https://www.efa-on.de/de/) Halle 3 Stand F02 mehr/more >>

Home
  • Products
    • Products
    • Metering cabinets
    • Transformer cabinets
    • Metering transformer cabinets
    • Freestanding distributors
    • Outdoor distributors
    • Accessories
  • Quality
  • Exhibitions
  • Career
  • Contact

Home > Products > Metering transformer cabinets > Metering cabinet system E 950/800 D1 ZW

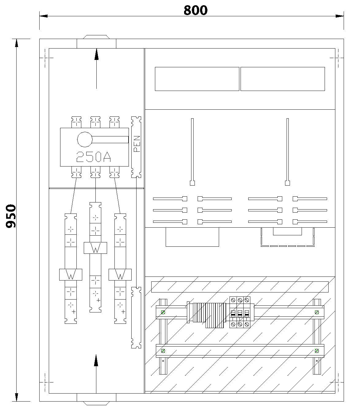
Metering cabinet system E 950/800 D1 ZW

Recycleble full plastic ● protective insulation ● sturdy stiff design

 

Low-voltage transformer metering 250A

Metering cabinet system E 950/800 D1 ZW

 

Dimensions: 950 x 800 x 225 mm

 

• Wire in: bottom 1x Pg 48

  top  1x Pg 48

• Access at bottom via 3 clamp terminals

  1x prism terminal

• Primary guide rails for the network operator’s transformers

• Load disconnector 250A

• Outflow at top via 3 screws and

  1x prism terminal

• Complete wiring to test terminal

 

Door with full-view safety glass

 

Lock: Square-key lock with sealable indicating disk

 

4 screws and plugs to mount cabinet ø9

 

Weight: approx. 30 kg

 

 

Meter board E 950/550 D1-H5

 

Dimensions: 900 x 500 x 25 mm

 

2 meter positions

• Completely wired ready to connect

 

Lower connection space

• Carrier rail 35/7.5

• Test terminal

• 3 automatic circuit breakers B10

• Transparent, sealable cover

 

Upper connection space

• Carrier rail 35/7.5

• Sealable norm field cover

 

Weight: approx. 12 kg

PDF Download
Product inquiry

Contact

Paul Deppe & Co. GmbH

Emmy-Noether-Str. 6 

31157 Sarstedt, Germany 

Telephone: (05066) 70 44 0 

Fax: (05066) 70 44 44 

E-Mail: info{at}deppe.eu

Sitemap

Home

 

Quality

 

Exhibitions

 

Contact

 

Legal

 

Privacy policy

Products

Metering cabinets

Transformer measurements

  • E 700/400 D1
  • E 700/550 D1
  • E 700/750 D1
  • E 950/550 D1
  • E 800/800 D1
  • E 950/800 D1
  • E 2000/800 D1

Direct measurements

  • D 1100/300-1Z
  • D 1250/300-2Z
  • D 1400/300-2Z

Transformer cabinets

  • E 800/550 D1-W
  • E 800/550 D1-W-TN
  • E 800/800 D1-W

Metering transformer cabinets

  • E 700/700 D1-ZW
  • E 1100/700 D1-ZW
  • E 1100/950 D1-ZW
  • E 700/950 D1-ZW
  • E 950/800 D1-ZW
  • E 1250/550 D1-ZW
  • E 1250/800 D1-ZW
  • E 1250/1050 D1-ZW

Freestanding distributors

  • St 2000/820/400 ZW

Outdoor distributors

  • A 1100/1115 ZW
  • A 1100/1445 ZW

Accessories

© 2025 Paul Deppe & Co. GmbH