(05066) 70 44 0

Francais  

<<   Light+Building in Frankfurt 8.3.26 - 13.3.26 mehr/more >>

Accueil
  • Produits
    • Produits
    • Armoires à compteur
    • Armoires de conversion
    • Armoires de conversion à compteur
    • Distributeurs verticaux
    • Distributeurs externes
    • Accessoires
  • Qualité
  • Installations
  • Carrière
  • Contact

Accueil > Produits > Armoires de conversion à compteur > Système d'armoire à compteur E 700/700 D1-ZW

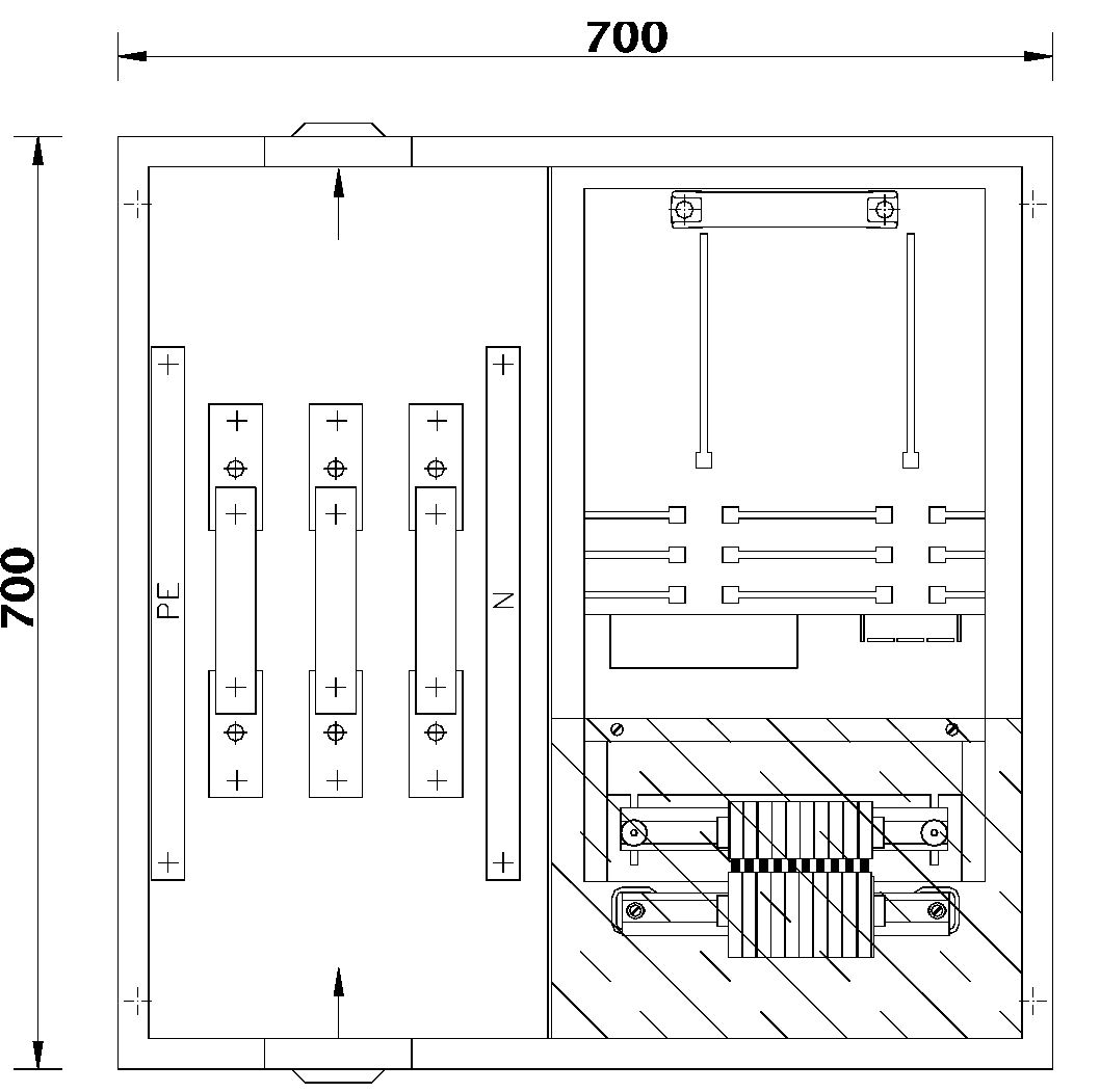
Système d'armoire à compteur E 700/700 D1-ZW

Plastique recyclable ● isolation de protection ● construction stable et rigide

 

Dispositif de décompte du convertisseur basse tension 250A

Armoire de conversion à compteur E 700/700 D1-ZW

 

Dimensions : 700 x 700 x 225 mm

 

• Connecteur L1-L3: vis M12

• Connecteur PE+N: vis M10

 

• Prise de tension

• Rails primaires pour les convertisseurs

 

• Câblage complet de la borne d'essai

• Borne d'essai inférieure

 

Entrée/sortie de câble : Pg 48 dans le tiroir

 

Les caches sont plombables

 

Cadenas : Carré avec volet plombable

 

4 vis et tourillons pour fixer l'armoire ø9

 

Poids : env. 13 kg

 

 

Panneau de contrôle E 700/400 D1-HZ5-2-300

 

Dimensions : 520 x 300 x 25 mm

 

• 2 place de compteur

• Borne d'essai supérieure

• Câblé, prêt à être raccordé

 

Poids : env. 2,5 kg

PDF Download
Product inquiry

Contact

Paul Deppe & Co. GmbH

Emmy-Noether-Str. 6 

31157 Sarstedt, Allemagne 

Téléphone: (05066) 70 44 0 

Fax: (05066) 70 44 44 

E-Mail: info{at}deppe.eu

Sitemap

Accueil

 

Qualité

 

Installations

 

Contact

 

Légal

 

Politique de confidentialité

Produits

Armoires à compteur

Mesures du convertisseur

  • E 700/400 D1
  • E 700/550 D1
  • E 700/750 D1
  • E 950/550 D1
  • E 800/800 D1
  • E 950/800 D1
  • E 2000/800 D1

Mesures directes

  • D 1100/300-1Z
  • D 1250/300-2Z
  • D 1400/300-2Z

Armoires de conversion

  • E 800/550 D1-W
  • E 800/550 D1-W-TN
  • E 800/800 D1-W

Armoires de conversion à compteur

  • E 700/700 D1-ZW
  • E 1100/700 D1-ZW
  • E 1100/950 D1-ZW
  • E 700/950 D1-ZW
  • E 950/800 D1-ZW
  • E 1250/550 D1-ZW
  • E 1250/800 D1-ZW
  • E 1250/1050 D1-ZW

Distributeurs verticaux

  • St 2000/820/400 ZW

Distributeurs externes

  • A 1100/1115 ZW
  • A 1100/1445 ZW

Accessoires

© 2025 Paul Deppe & Co. GmbH